Uutiset
Miten suunnitella ravintolan keittiön pohjapiirustukset: Nollasta yhteen

Ravintolan pohjapiirustus on erinomainen tapa saada koko konseptisi tilaan. Looginen asettelu parantaa ehdottomasti asiakkaiden aterimiskokemusta ja palvelun laatua, mikä vaikuttaa suoraan voittoihisi. Tarkan ravintolapohjapiirustuksen arvo näkyy erityisesti keittiön tilojen järjestelyssä ja työnkulussa, sillä takahuone (BOH) on keskeinen silta ruoan ja asiakkaan välillä.
Viimeaikaisen alan toimintakertomuksen mukaan yli 40 % ravintoloiden tehottomuuksista johtuu huonosta takahuoneen (BOH) asettelusta, ei pelkästään henkilöstöstä tai menulistasta! Tämä tarkoittaa, että sinun täytyy käyttää aikaa ja vaivaa järkevän ravintolan keittiösuunnitelman laatimiseen. Oletko valmis aloittamaan? Tässä oppaassa käymme läpi, miten luot oman ravintolan keittiön pohjapiirustus nollasta yhteen, mukaan lukien kaikki olennaiset vyöhykkeet, asetteluperiaatteet ja koon mukaiset strategiat.
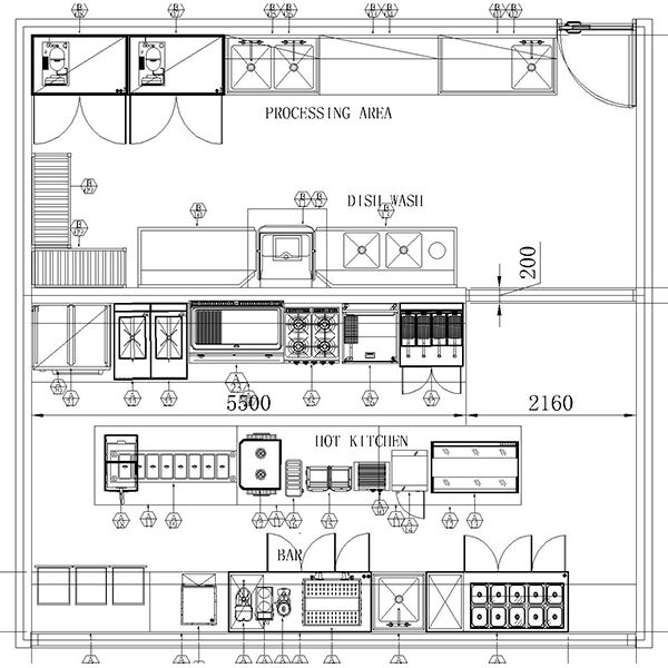
Ravintolan keittiön pohjapiirustuksen ymmärtäminen
Ennen kuin siirrymme suunnittelun pariin, meidän tulisi nopeasti käydä läpi mitä ravintolan pohjapiirustus on . Kuvittele sitä kuin koko toimintasi äärimmäiseksi kartaksi! Se on oleellisesti mittakaavassa oleva kaavio, joka näyttää kaupallisen keittimesi asettelun, ja se kattaa kaiken laitteiden sijoittelusta työnkulkuun sekä kaikkiin tarvittaviin osiin ja vyöhykkeisiin. Kuitenkin ihmiset käyttävät usein termejä pohjapiirustus, asettelu ja rakennuspiirustus vaihtoehtoisesti, vaikka niiden välillä on pieni mutta tärkeä ero. Älä huolehdi, selvitämme sen nopeasti!
Asettelu määrittelee, miten keittimesi toimii, missä valmistelutila yhdistyy kokkausalueeseen, minne ainekset liikkuvat ja miten henkilökunta vuorovaikuttaa.
Pohjapiirustus on visuaalinen esitys, kuten seinät, viemäri-, sähkö- ja ilmanvaihtojärjestelmien linjat.
Piirustus on tekninen taso, joka liittyy mittoihin, korokkeisiin, koodeihin ja suunnittelutietoihin, joita urakoitsijat tarvitsevat sen rakentamiseen.
Klikkaa tästä saadaksesi lisätietoja ravintolan keittiöstä

6 ammattikeittiön pohjapiirustusten taustalla olevaa periaatetta
Ammattikeittiön pohjapiirustus on vähemmän taiteellista visiota ja enemmän systeemistä logiikkaa. Hyvät suunnittelijat ja kokeneet kokin tiedostavat, että tehokkuus ja turvallisuus ovat aina ensisijaisia.
1. Ergonomia ja turvallisuus
Kaikki pyörii siinä, kuinka helpommaksi keittäjän työ voidaan tehdä! Tämä periaate keskittyy tarpeettoman liikkumisen vähentämiseen ja henkilökunnan kulkematkan lyhentämiseen tehtävien välillä, esimerkiksi raaka-aineiden siirrossa jääkaapista valmistelupöydälle. Toisaalta tämä parantaa ruoanlaiton tehokkuutta; toisaalta se vähentää väsymystä, mikä on erinomainen tapa ehkäistä onnettomuuksia, kuten liukastumisia, palovammoja tai leikkausvammoja. Pidä aina vilkkaat kulkureitit esteettöminä ja varmista, että usein käytettävät laitteet sijaitsevat kätevästi.
2. Lineaarinen virtaus
Keittipisteesi täytyy toimia kuin sulava yksisuuntainen katu. Liikenneongelmia ei sallita! Työnkulku on järjestettävä jatkuvaksi eteneväksi suunnaksi: Saanti/Varastointi → Valmistelu → Ruoanlaitto/Lautastointi → Palvelu. Tämä lineaarinen ja saastumaton reitti on välttämätön, koska se estää likaisten astioiden risteilyn tuoreiden raaka-aineiden kanssa ja varmistaa, etteivät kokit törmäile jatkuvasti vastaanottotiimin kanssa.
3. Näkyvyys ja viestintä
Kokki pitää pystyä näkemään linjan, expediterin ja astianpesualtaan huutamatta. Visuaalinen hallinta mahdollistaa nopeammat säädöt, erityisesti ruuhka-aikoina.
4. Ristiincontaminaation ehkäisy
Tämä on selkeä sääntö elintarviketurvallisuuden ja HACCP-yhdenmukaisuuden kannalta. Sinun on fyysisesti ja työnkulkujärjestelyissä erotettava "puhtaat" toiminnot, kuten kypsentettyjen ruokien lautastointi, "likaisista" toiminnoista, kuten raakalihan pesusta tai likaisten lautasien raapimisesta. Tämä erottelu edellyttää usein omia pesualtaita, tiettyjä värikoodattuja leikkuulaattoja ja keittiön pesualueen täydellistä erottelua kuumasta linjasta.
5. Käytävän leveyden noudattaminen
Älä säästellä käytävätilaa! Kapea käytävä on enemmän kuin vain ärsyttävä; se on suuri turvallisuusriski. Käytävien tulee olla tarpeeksi leveät, jotta kaksi henkilöä voi ohittaa toisensa turvallisesti tai jotta joku voi siirtää suuria laitteita, kuten hyötykärryjä tai uunihyllyjä, ilman että osuu toiseen henkilöön. Teollisuuden vähimmäisvaatimus 0,91–1,22 metriä (36–48 tuumaa) on ratkaisevan tärkeä turvallisuuden, tehokkuuden ja paloturvallisuusmääräysten noudattamisen kannalta.
6. Laajennettavuus
Liiketoimintasi saattaa kasvaa nopeammin kuin luulitkaan, tai ruokalistasikaan voi muuttua dramaattisesti! Laajennettavuus tarkoittaa joustavan suunnittelun käyttöä. Tarvitseeko oikeasti meun kaupallinen painekeitin ? Voitko lisätä toisen valmistelupöydän ilman, että se estää pääliikennevirran? Varmista, että hyötylinjoissasi on jonkin verran varausta tuleviin laitepäivityksiin.

Asemakaavan ja pohjapiirroksen välinen yhteys
A keittiön layout määrittelee, miten keittiö toimii; pohjapiirros määrittelee, miten se hengittää. Se yhdistää keittiön ravintolan jokaiseen osaan, alkaen asiakastilasta, kuten syömälästä, baarista ja palvelupisteestä, aina toimitusaukkoon ja wc-tiloihin saakka. Pohjapiirros, joka eristää keittiön asiakastilasta, aiheuttaa aina toiminnallista kitkaa.
Kuvittele tämä: jos annosikkuna on liian kaukana palveluovesta, tarjoilijat tukkivat kokkausaluetta. Jos astianpesualue sijaitsee kylmäsäilytyksen takana, elintarviketurvariskisi nousee huippuunsa. Jokainen suunnitteluvirhe moninkertaistuu työntekijöiden määrän ja vuorojen mukaan päivässä.
Joten suunniteltaessa ravintolakeittiön perustasoa, seuraa aina raaka-aineiden ja annosten kulkua autosta takaportista pöytään syömälässä.
Suunnittelu koon mukaan: kolme yleistä ravintolamallia
1. Pieni pinta-ala (20–40 neliömetriä)
Pienet keittiöt ovat kuin jazzbändit. Tiukkoja, dynaamisia, improvisoivia. Teillä ei ole tarpeeksi tilaa ylimääräisille laitteille, joten jokaisen laitteen on oltava monin tarkoituksin.
Suunnittelun logiikka:
- Pysykää lineaarisessa järjestyksessä.
- Valitse monifunktionaalinen laitteisto (kombikohjut, induktiokehät, kaupalliset keittiölaatikot ).
- Integroitu alaluokitus jäähdytys avaruustalouteen.
- Pitäkää käytävät vapaina: vähintään 1 metrin leveys.
Pro Insight: 30 neliömetrin kahvilaan, jossa tarjoillaan 60 ateriaa tunnissa, suunnittelu perustuu kolmeen asemaan: valmistelu, kokkaaminen, lautas. Kaikki sen yli lisää kitkaa.

2. Suomalainen Tyypilliset keittiöt (40100 neliömetriä)
Täällä asuvat useimmat ravintolat. Ruokaa rakennetta varten, mutta silti herkkiä virtauksen häiriöille.
Suunnittelun logiikka:
- Suunnittele alueellinen suunnittelu: kylmälaitteiden valmistamiseen, kuumat linjat, astianpesua ja huoltotoimet.
- Pidä keittiölinja näkyvillä kokille ja ohittaa ikkuna.
- Suunnittele kaksi sisäänkäyntiä. Yksi varauksen vastaanottamiseen ja toinen jätteiden poistamiseen.
- Kuivalla varastointi ja kylmävarastointi on tehtävä erikseen vaatimustenmukaisuuden varmistamiseksi.
- Turvallisuuden vuoksi käytävän leveys on vähintään 1,2 metriä.
Esimerkki: 70 neliömetrin tilallinen ravintola voi sisältää: 2 valmistajapöytää, kuusipolttolaatikkoa, konvektio-uunin, jäähdytyspankin ja astianlaatikon, jossa on rasva-aisti. Kaikki järjestetty U-muotoiseen kokoonpanoon suljettua kiertokulkua varten.

3. Hän ei ole kuollut. Suuret keittiöt (100 m2)
Ajattele hotelleja, juhla- ja ravintolatiloja. Nämä ovat enemmän teollisuuslaitoksia kuin kotitalouksien keittiöitä.
Suunnittelun logiikka:
- Erillinen keittiöalue (kuuma keittiö, kylmä keittiö, leipomo, varastointi). - Jos haluat luksusravintolaalle, avoin keittiojärjestely on paras vaihtoehto .
- Sisällytä vastaanottoristeys kaupallinen keittio saaren kokonaisuus , ja kävelykylmä säilytystilat.
- Käytä lattiavalumia, liukumaton epoksimuovipinnoitetta ja palonsulkevia ovia.
- Varmista leveät käytävät (1,8–2 m) kyyditysten ja työpöytävaunujen liikkumista varten.
- Suunnittele energiavyöhykkeet ja raskas laitteisto omien sähköpiirien läheisyyteen.
Suhteiden peukalosääntö: Isossa keittiössä tilan tulisi jakautua noin seuraavasti: 25 % varastointiin, 30 % ruoanlaittoon, 20 % esikäsittelyyn, 15 % pesuun, 10 % hallintoon ja lähetystehtäviin.
Vinkki: Konsultoi konetekniikan asiantuntijoita varhain. Ilmanvaihto- ja palosuojelujärjestelmistä tulee kalliimpia, kun seinät on jo rakennettu.

Miten piirtää pohjapiirros nollasta
Vaihe 1. Aloita valikolla
Valikko määrää keittiön, ei toisin päin. Jokaisella keittotavalla on omat erityisvarusteet ja työnkulut; sushipajan valmistelulogiikka poikkeaa esimerkiksi italialaisen trattorian vastaavasta. Piirtämisen alussa sinun tulisi siis listata tunnuspalasi ja niiden valmistusvaiheet.
Vaihe 2. Kartuta prosessi
Hahmottele ainesosan kulkureitti: Saapuminen (vastaanottotila), Säilytys (kylmä/kuiva), Valmistus, Ruoanlaitto, Lautastointi, Palvelu, Astian palautus ja pesu. Jokainen vaihe muodostaa erillisen vyöhykkeen suunnitelmaan.
Vaihe 3. Mittaa ja merkitse
Hanki tarkat huoneen mitat. Huomioi katon korkeus, ilmanpoistoaukot, vesijohtojärjestelmät ja sähköteho. Mittaa aina kahdesti; virheet tässä vaiheessa aiheuttavat tuhansien eurojen lisäkustannukset rakennustyössä.
Vaihe 4. Valitse työkalut
Käytä AutoCAD-, ChefTec- tai SmartDraw-malleja. Ne auttavat visualisoimaan vaatimukset (HACCP-vyöhykkeet, käsinpesuallas, jne.) ja tuottamaan rakennuksen valmiita piirustuksia.
Vaihe 5. Tarkista
Näytä suunnitelma arkkitehdillesi, terveydenhuollon tarkastajalle ja paloviranomaiselle. Kolmenkymmenen minuutin neuvottelu tässä vaiheessa voi säästää kuukausien mittaiset uudelleensuunnittelut myöhemmin.

Mitä pohjapiirustuksen on kattava
Ravintolakokillisen rakennussuunnitelma ei ole täydellinen, ennen kuin se sisältää seuraavat osatekijät:
- MEP-koordinaatio: Mekaaniset, sähkö-, vesijohto- ja ilmanpoistojärjestelmien reititys.
- Viemärsuunnitelma: Lattiakallistukset ja rasvakoot.
- Turvallisuusjärjestelmät: Palonsammutus, sammuttimet, poistumisreitit.
- Valaistus: Tasainen kirkkaus ilman varjoalueita.
- Ilmanvaihto: Ilmanpoisto ja korvausilman tasapaino.
- Hygienia-asemat: Käsienpesuallas, saippuajakelija, tuhohyrkkäisten estäminen.
- Energian optimointi: Erikytkentä raskaille virrankulutuspiireille kuten ruoanlaittolaitteille.
Vahva suunnittelu ei ole vain määräystenmukaista; se on myös mukavaa. Kokkienne tuntevat sen ennen kuin sanovat sen.
Yleisiä virheitä keittiön lattiasuunnittelussa
Jopa kokeneet ravintoliikkeiden omistajat jäävät näihin ansoihin:
- Ulkonäön suunnitteleminen liiketoiminnan sijaan. Marmoriannokset eivät korjaa huonoa liikkumislokiikkaa. Aseta hyödyllisyys kauneuden edelle.
- Ilmanvaihdon laiminlyönti varhaisessa vaiheessa. Voit lisätä laitteita, mutta et ilmakanavia kun katto on jo suljettu.
- Laitteiden liiallinen tiivistäminen. Jätä tilaa hengittää – koneille tarvitaan ilmaa ja huoltotilaa.
- Jätteen ja astianpesun laiminlyönti. Astianpesualtaat ovat keittiön keuhkoja. Jos ne tukkeutuvat, palvelu tukkeutuu.
- Henkilökunnan liikkumisen aliarvioiminen. Suunnittele enemmän henkilöitä kuin luulet tarvitsevasi. Ruuhkahuoneilla ihmisten määrä kasvaa, ei tila.
- Tulevan kasvun aliarviointi. Varaa aina 10–15 % keittiön pinta-alasta joustavaksi tilaksi uusille laitteille tai kausiruokalistoille.
Suunnitelmasta toteutukseen
Ravintolakeittiön suunnittelu nollasta yhdeksi on empatian akti. Siinä on kyse siitä, miten kokit liikkuvat, miten tarjoilijat ajattelevat ja miten ruoka kulkee. Täydellinen ravintolajärjestely on sellainen, jossa henkilökunta unohtaa olevansa seinien sisällä, koska suunnittelu vapauttaa heidät tekemään parasta työtään.
Joten ennen kuin tilaat kalliin liesituksen tai espressokoneen, ryhdy kynään. Suunnittele liiketoiminta, logiikka ja tarina siitä, miten ravintolasi hengittää. Jos aiot perustaa uuden ravintolan tai uudelleensuunnitella keittiösi, klikkaa tästä saadaksesi räätälöidyn avaimet-käteen -kaupallisen keittiöratkaisun suunnittelusta laitteiden toimitukseen ja asennukseen.
Aiheisiin resursseihin
- Ravintolakokon suunnittelu: 6 keskeistä takahuoneen yksityiskohtaa
- Käytännöllisiä vinkkejä, joita ei voi jättää huomiotta ravintolakokkien suunnittelussa
- Mikä on ravintolakeittiö? Osastot, pohjapiirrokset ja varustelista
- Pikaruokaloiden (QSR) ymmärtäminen
- 8 suosittua ravintolatyyppejä
UKK ravintolakeittiöjen pohjapiirustuksista
K1: Kuinka iso kaupallinen keittiö tulisi olla suhteessa syömälään?
Yleensä varaa 30–40 % kokonaispinta-alasta keittiölle. Suurkuluttavilla tai toimituspainoisilla ravintoloilla saattaa tarvita enemmän.
K2: Mikä on ideaalinen käytävän leveys?
Vähintään 1,2 metriä yhden henkilön käytäville ja 1,8 metriä kaksisuuntaiselle liikkumiselle.
K3: Mitkä standardit säätelevät keittion suunnittelua?
Noudata NSF-, HACCP- ja paikallisia elintarvikelakeja. Tarkista aina palo- ja ilmanvaihtomääräykset varhaisessa vaiheessa.
K4: Tulisiko palkata keittiösuunnittelija vai arkkitehti?
Ihanteellisesti molemmat. Suunnittelijat ymmärtävät toiminnallisen työnkulun; arkkitehdit varmistavat määräysten noudattamisen ja yhteensopivuuden.
K5: Mikä on kaupallisen keittiön uudelleensuunnittelun hinta?
Mistä tahansa 800–1200 €/m², riippuen hyödyntöjen ja viimeistelyn tasosta.
K6: Miten varmistan joustavuuden tuleville ruokalistoille?
Käytä modulaarisia työtasoja, liikuteltavia valmistelupöytiä ja varareserviä. Älä kiinnitä kaikkea betoniin.
Asiakaspalvelu:
EN
AR
HR
NL
FI
FR
DE
EL
HI
IT
PT
RO
RU
ES
TL
ID
SL
VI
ET
MT
TH
FA
AF
MS
IS
MK
HY
AZ
KA
UR
BN
BS
KM
LO
LA
MN
NE
MY
UZ
KU





